Capannone in affitto

Fiorano Modenese, Via Vazza I Tronco
€ 9.600 / mese
2 locali 2 locali
2100 Mq 2100 Mq
4 bagni 4 bagni

Capannone in affitto

Fiorano Modenese, Via Vazza I Tronco

Questo immobile appartiene ad un'unità principale con metratura più ampia

Descrizione annuncio

COSA SAPERE DELL'IMMOBILE
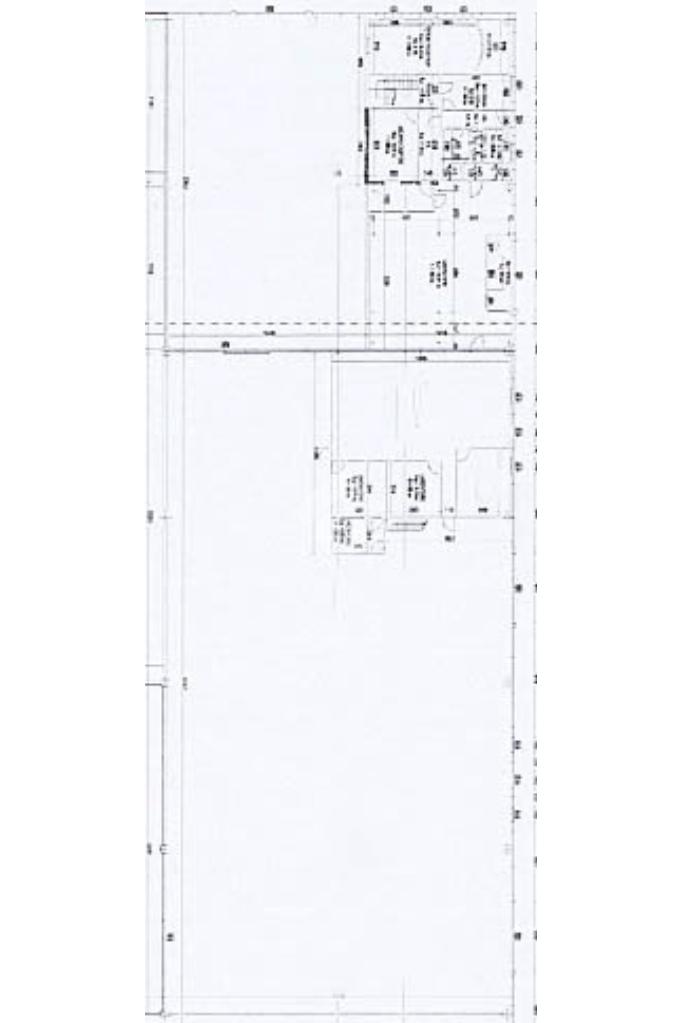
Proponiamo in locazione un capannone di circa 2.100 metri quadrati posizionato al piano terra di un edificio strutturato su due piani complessivi. Completa la proprietà un’area esterna non esclusiva di circa 500 metri quadrati.

DESCRIZIONE E PARTICOLARITA'
Il capannone proposto in locazione ha una superficie complessiva di circa 2.100 metri quadrati, di cui 400 metri quadrati adibiti ad uffici disposti al piano terra e al primo piano dell’edificio. Internamente, l'immobile presenta due campate ed è suddiviso in due locali con un'altezza massima sfruttabile di circa 9,00 metri e un’altezza di sottotrave di circa 7,00 metri. L'accesso all'area interna avviene tramite tre portoni aventi un’altezza di circa 4,50 metri. Il capannone è dotato degli impianti elettrico e di illuminazione. A completare la soluzione è la presenza di quattro servizi igienici privati a norma disabili provvisti di docce e spogliatoi.

UBICAZIONE E CONTESTO
La struttura è situata nella zona industriale del Comune di Fiorano Modenese e beneficia di circa una quarantina di posti auto messi a disposizione della clientela.

Mostra tutto

Nelle vicinanze

Trasporto pubblico Trasporto pubblico
Trasporto pubblico
390 m
Spezzano
Spezzano
640 m
Ricariche auto elettriche Ricariche auto elettriche
Fiorano Modenese Volturno | EnelX
630 m
Spezzano Via Statale | EnelX
1,0 Km
Fiorano Modenese Santa Caterina | EnelX
1,3 Km
Fiorano Modenese Silvio Pellico | EnelX
1,7 Km
Municipio di Fiorano Modenese | EnelX
1,7 Km
Scuole Scuole
Scuola Elementare Luisa Guidotti
720 m
Scuola media "Francesca Bursi"
1,1 Km
Scuole
1,1 Km
Scuola elementare Enzo Ferrari
1,2 Km
Scuola media "Francesca Bursi" - sezione distaccata
2,1 Km
Farmacia Farmacia
Farmacia Comunale Spezzano
610 m
Farmacia Dott. Bavutti
630 m
Farmacia
960 m
Farmacia SS. Antonio e Francesco
1,4 Km
Farmacia Comunale
1,8 Km
Supermercati Supermercati
Ecu
360 m
Issimo
590 m
Iperfamila
880 m
CONAD
940 m
Barozzini Gino
1,9 Km
Negozi Negozi
Extra
360 m
Stile Liberty di Fiorenza Maria Goretta
400 m
Panificio Al Furner di Sernesi
430 m
Corradini Duilio
430 m
Monroe
800 m
Bar Bar
Bar Pizzeria Dollaro
350 m
Gerò Cafè
440 m
Bar Freddy
550 m
Caffè Parioli
640 m
Pasticcera Althea
670 m
Ristoranti Ristoranti
Ristorante Pizzeria "Da Rino"
430 m
La Pagoda
670 m
Osteria del Pistolero
710 m
Osteria Camporosso
1,2 Km
Colorado
1,6 Km
Mostra tutto

Caratteristiche

Rif.:
61171962
Piano:
Terra di 2
Totale piani:
2
Posti auto:
40
Condizionamento:
Assente
Ascensore:
No
Mostra tutto
Prezzo Prezzo
€ 9.600 / mese
Spese annue Spese annue
€ 0

Classe Energetica

Questo immobile è esente da classe energetica
Anno di costruzione:
1996
Riscaldamento:
Assente

Ti interessa visionare l'immobile?

Fissa un appuntamento  Fissa un appuntamento

Richiedi informazioni

Clicca su Leggi per aprire l'informativa
* Questi campi sono obbligatori
Affiliato
Industriale Modena Uno Srl
Via G. Picelli, 4/B 41043 Formigine (MO)

Il nostro staff


  • Marica Beneventi
    Coordinatrice

  • Gabriele Falcone
    Collaboratore

  • Riccardo Roveda
    Collaboratore

  • Igli Aliu
    Affiliato
Via G. Picelli, 4/B 41043 Formigine (MO)
Zona: Formigine-Sassuolo-Maranello-Fiorano-Vignola-Castelnuovo Rangone-Castelvetro di Modena- Savignano
Mostra su mappa
Orari: Dal lunedì al venerdì dalle ore 8.30 alle ore 12,30 e dalle ore 13.30 alle ore 19. Sabato dalle ore 8.30 alle ore 12
Affiliato
Industriale Modena Uno Srl
Via G. Picelli, 4/B 41043 Formigine (MO)

2026 Tecnocasa Franchising S.p.A. - P. IVA 08365160152 - Via Monte Bianco 60/A 20089 Rozzano (MI). Ogni agenzia ha un proprio titolare ed è autonoma. Privacy policy | Policy utilizzo | Cookie policy