Capannone in vendita

Fiorano Modenese, Via del Canaletto
€ 2.900.000
6 locali 6 locali
2570 Mq 2570 Mq
8 bagni 8 bagni

Capannone in vendita

Fiorano Modenese, Via del Canaletto

Descrizione annuncio

COSA SAPERE DELL'IMMOBILE

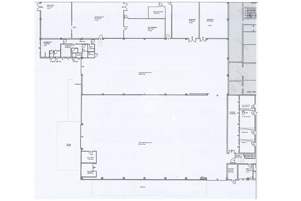
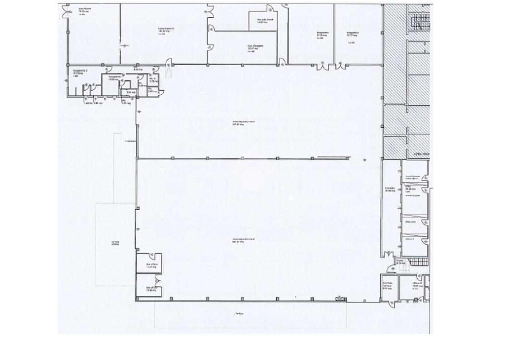
Proponiamo in vendita un capannone con una superficie di circa 2.570 metri quadrati, di cui 520 metri quadrati adibiti ad uffici situati al piano terra e al primo piano dell’edificio. Completa la proprietà un’area esterna esclusiva di circa 4.700 metri quadrati.

DESCRIZIONE E PARTICOLARITÀ

Il capannone proposto in vendita dispone di una superficie utile di circa 2.570 metri quadrati, di cui 520 metri quadrati adibiti ad uffici situati al piano terra e al primo piano dell’edificio.

Internamente, l'immobile si sviluppa lungo due campate, ed è suddiviso in sei locali con un'altezza massima di circa 7,00 metri e altezza di sottotrave di 6,50 metri, ed è accessibile tramite tre portoni alti 4,50 metri.

La struttura è dotata dell’impianto elettrico, di illuminazione, e di condizionamento; inoltre sono presenti otto servizi igienici privati provvisti di docce e locale spogliatoi. Completa la proprietà un’area esterna esclusiva di circa 4.700 metri quadrati.

UBICAZIONE E CONTESTO

Il capannone si trova nella zona industriale del Comune di Fiorano Modenese e dispone di una decina di posti auto messi a disposizione della clientela e ulteriori dieci posti auto riservati.

Mostra tutto

Nelle vicinanze

Trasporto pubblico Trasporto pubblico
Spezzano
Spezzano
1,3 Km
Trasporto pubblico
1,4 Km
Ricariche auto elettriche Ricariche auto elettriche
Ubersetto Monte Ave Enel X | EnelX
780 m
Spezzano Via Statale | EnelX
1,2 Km
Enel X Museo Ferrari
1,5 Km
Eneldrive Museo Ferrari
1,5 Km
Maranello Claudia | EnelX
1,8 Km
Scuole Scuole
Scuole
1,2 Km
Scuola media "Francesca Bursi"
1,7 Km
Istituto Comprensivo "Ferrari Maranello"
1,7 Km
Scuola Elementare Luisa Guidotti
2,0 Km
Scuola elementare Enzo Ferrari
2,6 Km
Farmacia Farmacia
Farmacia delle Ceramiche
780 m
Farmacia
1,2 Km
Farmacia Comunale Spezzano
1,3 Km
Farmacia Dott. Bavutti
2,0 Km
Parafarmacia Conad
2,6 Km
Supermercati Supermercati
CONAD
1,2 Km
Ecu
1,4 Km
Issimo
1,6 Km
Conad
1,8 Km
Lidl
2,3 Km
Negozi Negozi
NATURA SI'
1,2 Km
Panificio Al Furner di Sernesi
1,5 Km
Extra
1,5 Km
Stile Liberty di Fiorenza Maria Goretta
1,6 Km
Corradini Duilio
1,6 Km
Bar Bar
Bar
1,2 Km
Pasticcera Althea
1,3 Km
Bar Pizzeria Dollaro
1,5 Km
Gerò Cafè
1,5 Km
Bar Freddy
1,9 Km
Ristoranti Ristoranti
Ristorante Montana
800 m
la Griglia
950 m
Il Cavallino
1,4 Km
Altamarea
1,6 Km
Ristorante Pizzeria l’Incontro
1,7 Km
Mostra tutto

Caratteristiche

Rif.:
61206764
Piano:
Terra di 1
Totale piani:
1
Box:
10
Posti auto:
10
Condizionamento:
Autonomo
Mostra tutto
Prezzo Prezzo
€ 2.900.000
Rata mutuo Rata mutuo
€ 13.765 / mese
Spese annue Spese annue
€ 0
Proponi il tuo prezzoProponi il tuo prezzo

Classe Energetica

Questo immobile è esente da classe energetica
Anno di costruzione:
2000
Riscaldamento:
Assente

Ti interessa visionare l'immobile?

Fissa un appuntamento  Fissa un appuntamento

Richiedi informazioni

Clicca su Leggi per aprire l'informativa
* Questi campi sono obbligatori

Calcola il tuo mutuo

Semplice e senza impegno
Anticipo

( % )
Mutuo

( % )

pochi semplici passi

inserisci i tuoi dati
Questionario completato
Grazie per aver richiesto un appuntamento senza impegno con un nostro Consulente del Credito e Assicurativo.

Hai inserito correttamente tutti i dati necessari e a breve riceverai una e-mail con un link da convalidare per inviare i tuoi dati.
Affiliato
Industriale Modena Uno Srl
Via G. Picelli, 4/B 41043 Formigine (MO)

Il nostro staff


  • Marica Beneventi
    Coordinatrice

  • Gabriele Falcone
    Collaboratore

  • Riccardo Roveda
    Collaboratore

  • Igli Aliu
    Affiliato
Via G. Picelli, 4/B 41043 Formigine (MO)
Zona: Formigine-Sassuolo-Maranello-Fiorano-Vignola-Castelnuovo Rangone-Castelvetro di Modena- Savignano
Mostra su mappa
Orari: Dal lunedì al venerdì dalle ore 8.30 alle ore 12,30 e dalle ore 13.30 alle ore 19. Sabato dalle ore 8.30 alle ore 12
Affiliato
Industriale Modena Uno Srl
Via G. Picelli, 4/B 41043 Formigine (MO)

2026 Tecnocasa Franchising S.p.A. - P. IVA 08365160152 - Via Monte Bianco 60/A 20089 Rozzano (MI). Ogni agenzia ha un proprio titolare ed è autonoma. Privacy policy | Policy utilizzo | Cookie policy