Ufficio in vendita

Fiorano Modenese, Via Statale Est
€ 320.000
4 locali 4 locali
200 Mq 200 Mq
2 bagni 2 bagni

Ufficio in vendita

Fiorano Modenese, Via Statale Est

Descrizione annuncio

COSA SAPERE DELL'IMMOBILE
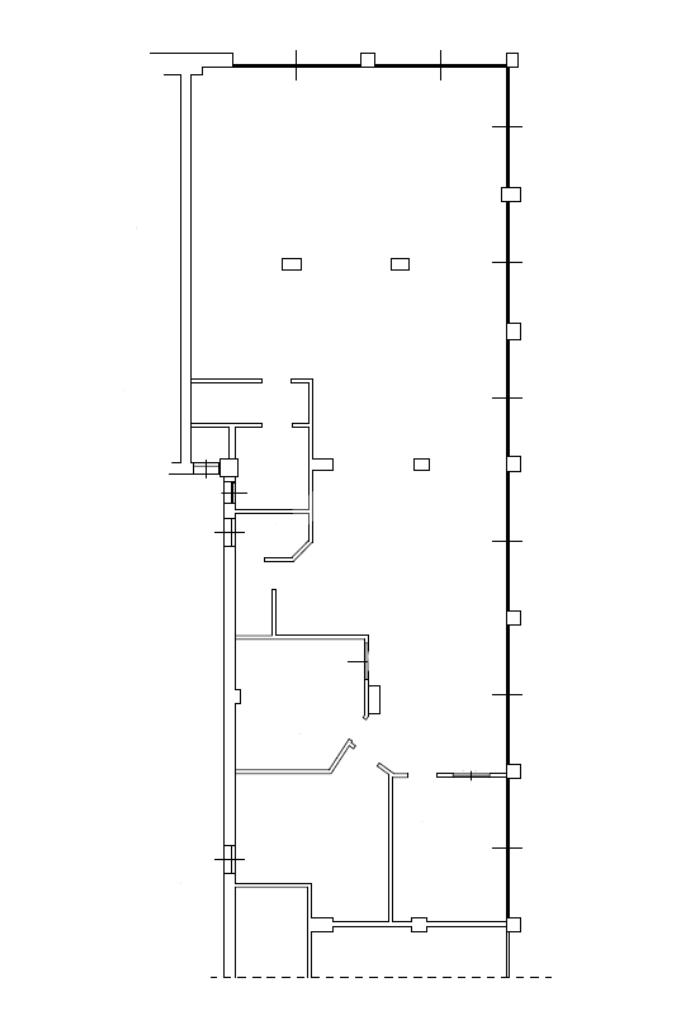
Proponiamo in vendita un ufficio che dispone di una superficie utile di circa 200 metri quadrati, posto al piano terra di un edificio strutturato su quattro piani complessivi.


DESCRIZIONE E PARTICOLARITA'

La struttura proposta in vendita dispone di una superficie calpestabile di circa 200 metri quadrati, ed è situata al piano terra di una palazzina sviluppata su quattro livelli. Internamente, l'immobile è suddiviso in quattro stanze rese particolarmente luminose grazie alla presenza di sette vetrine con affaccio esterno. Il locale è dotato dell'impianto elettrico, di illuminazione, di riscaldamento e di condizionamento. A completare la soluzione è la presenza di due servizi igienici privati.

UBICAZIONE E CONTESTO
L’ufficio sorge nella zona commerciale del Comune di Fiorano Modenese e dispone di circa una ventina di posti auto messi a disposizione della clientela.

Mostra tutto

Nelle vicinanze

Trasporto pubblico Trasporto pubblico
Sassuolo Terminal
Sassuolo Terminal
2,4 Km
Sassuolo Radici
Sassuolo Radici
2,7 Km
Trasporto pubblico
130 m
Po Opel
Po Opel
1,3 Km
Sassuolo Quattroponti
Sassuolo Quattroponti
2,2 Km
Ricariche auto elettriche Ricariche auto elettriche
Municipio di Fiorano Modenese | EnelX
290 m
Fiorano Modenese Santa Caterina | EnelX
310 m
Fiorano Modenese Silvio Pellico | EnelX
340 m
Fiorano Modenese Ciliegi | EnelX
810 m
Fiorano Modenese Volturno | EnelX
1,2 Km
Scuole Scuole
Scuola elementare Enzo Ferrari
220 m
Scuola media "Francesca Bursi" - sezione distaccata
790 m
Scuola media "Francesca Bursi"
800 m
Scuola Elementare Luisa Guidotti
1,1 Km
Scuola Primaria "Sant'Agostino"
1,8 Km
Farmacia Farmacia
Farmacia SS. Antonio e Francesco
40 m
Farmacia Comunale
710 m
Farmacia Dott. Bavutti
920 m
Farmacia Comunale Spezzano
1,9 Km
Farmacia
2,2 Km
Ospedali Ospedali
Casa di cura Villa Fiorita
1,8 Km
Nuovo Ospedale Civile
2,0 Km
Supermercati Supermercati
Iperfamila
610 m
Barozzini Gino
610 m
Coop Mezzavia
1,5 Km
COOP
1,5 Km
Issimo
1,6 Km
Negozi Negozi
Nuovo Forno
80 m
Pan per Focaccia
160 m
PanePiù
210 m
Alimentari Bellini
320 m
Forno alimentari sernesi
460 m
Bar Bar
Bar Festival
510 m
Graffio
650 m
Bar Guarascio
700 m
Caffè Parioli
900 m
Bar Freddy
1,1 Km
Ristoranti Ristoranti
Pescado
410 m
Colorado
420 m
Hotel Touring
760 m
La Pagoda
890 m
Osteria Camporosso
1,2 Km
Mostra tutto

Caratteristiche

Rif.:
61149938
Piano:
Terra di 4
Totale piani:
4
Posti auto:
20
Condizionamento:
Autonomo
Ascensore:
No
Mostra tutto
Prezzo Prezzo
€ 320.000
Rata mutuo Rata mutuo
€ 1.519 / mese
Spese annue Spese annue
€ 0
Proponi il tuo prezzoProponi il tuo prezzo

Classe Energetica

Questo immobile è esente da classe energetica
Anno di costruzione:
1982
Riscaldamento:
Autonomo
Tipo impianto:
Ad aria
Tipo alimentazione:
Altro

Ti interessa visionare l'immobile?

Fissa un appuntamento  Fissa un appuntamento

Richiedi informazioni

Clicca su Leggi per aprire l'informativa
* Questi campi sono obbligatori

Calcola il tuo mutuo

Semplice e senza impegno
Anticipo

( % )
Mutuo

( % )

pochi semplici passi

inserisci i tuoi dati
Questionario completato
Grazie per aver richiesto un appuntamento senza impegno con un nostro Consulente del Credito e Assicurativo.

Hai inserito correttamente tutti i dati necessari e a breve riceverai una e-mail con un link da convalidare per inviare i tuoi dati.
Affiliato
Industriale Modena Uno Srl
Via G. Picelli, 4/B 41043 Formigine (MO)

Il nostro staff


  • Marica Beneventi
    Coordinatrice

  • Gabriele Falcone
    Collaboratore

  • Riccardo Roveda
    Collaboratore

  • Igli Aliu
    Affiliato
Via G. Picelli, 4/B 41043 Formigine (MO)
Zona: Formigine-Sassuolo-Maranello-Fiorano-Vignola-Castelnuovo Rangone-Castelvetro di Modena- Savignano
Mostra su mappa
Orari: Dal lunedì al venerdì dalle ore 8.30 alle ore 12,30 e dalle ore 13.30 alle ore 19. Sabato dalle ore 8.30 alle ore 12
Affiliato
Industriale Modena Uno Srl
Via G. Picelli, 4/B 41043 Formigine (MO)

2026 Tecnocasa Franchising S.p.A. - P. IVA 08365160152 - Via Monte Bianco 60/A 20089 Rozzano (MI). Ogni agenzia ha un proprio titolare ed è autonoma. Privacy policy | Policy utilizzo | Cookie policy