Capannone in vendita

Modena, Via Emilio Salgari
€ 570.000
2 locali 2 locali
960 Mq 960 Mq
5 bagni 5 bagni

Capannone in vendita

Modena, Via Emilio Salgari

Descrizione annuncio

COSA SAPERE DELL'IMMOBILE

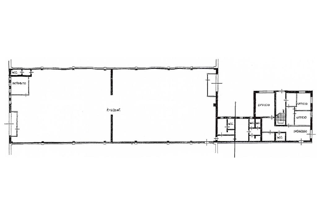
Proponiamo in vendita un capannone che dispone di una superficie di circa 700 metri quadrati, posto al piano terra di un edificio di due piani complessivi. A completare la soluzione è la presenza di un’area esterna esclusiva di circa 100 metri quadrati.


DESCRIZIONE E PARTICOLARITA'

La soluzione proposta in vendita dispone di una superficie calpestabile di circa 960 metri quadrati, di cui 700 metri quadrati di capannone e ulteriori 110 metri quadrati adibiti ad uffici, situati al piano terra e 150 metri quadrati adibiti ad appartamento situato al primo piano dell’edificio.

Internamente, l’immobile presenta due locali ed è suddiviso in due locali. Il capannone ha un’altezza di circa 4,70 metri e un’altezza sottotrave di 4,20 metri; l’accesso avviene tramite due portoni alti 4,00 metri. L’immobile ed è dotato dell’impianto elettrico e di illuminazione. A completare la soluzione è la presenza di cinque servizi igienici privati e 100 metri quadrati di area esterna esclusiva.

UBICAZIONE E CONTESTO

Il capannone sorge nella zona industriale del Comune di Modena e dispone di alcuni posti auto messi a disposizione della clientela.

Mostra tutto

Nelle vicinanze

Trasporto pubblico Trasporto pubblico
Salgari
Salgari
30 m
Anesino
Anesino
220 m
Ricariche auto elettriche Ricariche auto elettriche
Modena Delfini | EnelX by Hera
750 m
EnelX EVA+ NordiConad Modena
1,4 Km
Modena da Vinci | EnelX by Hera
1,4 Km
Bricoman Modena
1,5 Km
Modena Emilia Ovest | EnelX by Hera
1,9 Km
Scuole Scuole
Scuola Primaria Statale "Giovanni XXIII"
590 m
Scuola Media Statale "Cavour"
590 m
Istituto di Istruzione Superiore "F. Corni"
1,2 Km
Istituto di Istruzione Superiore "F. Selmi"
1,3 Km
Scuola Primaria Statale "Emilio Po"
1,3 Km
Farmacia Farmacia
Farmacia
2,6 Km
Beata Vergine del Popolo
2,9 Km
Bruni
3,0 Km
Ospedali Ospedali
Ospedale Sant'Agostino
2,8 Km
Supermercati Supermercati
Eurospar
1,3 Km
Conad
1,4 Km
Sigma
1,5 Km
Discount più
1,6 Km
Coop
2,0 Km
Negozi Negozi
Forno Pasticceria Raffaello
1,7 Km
Alimentari
2,2 Km
Gastronom di Pavlov Jana (Gastronom Russkij magazin)
2,3 Km
Il Forno
2,3 Km
Negozi
2,4 Km
Bar Bar
Calimero Soft bar
1,7 Km
Millybar
1,8 Km
Bar H
2,3 Km
Vibra
2,3 Km
Snoopy
2,4 Km
Ristoranti Ristoranti
80° Miglio
320 m
Kokoro
330 m
Ginza
370 m
Strada Facendo
540 m
Trattoria Madonnina
1,3 Km
Mostra tutto

Caratteristiche

Rif.:
61202534
Piano:
Terra di 2
Totale piani:
2
Posti auto:
5
Condizionamento:
Assente
Ascensore:
No
Mostra tutto
Prezzo Prezzo
€ 570.000
Rata mutuo Rata mutuo
€ 2.705 / mese
Spese annue Spese annue
€ 0
Proponi il tuo prezzoProponi il tuo prezzo

Classe Energetica

Questo immobile è esente da classe energetica
Anno di costruzione:
1980
Riscaldamento:
Assente

Ti interessa visionare l'immobile?

Fissa un appuntamento  Fissa un appuntamento

Richiedi informazioni

Clicca su Leggi per aprire l'informativa
* Questi campi sono obbligatori

Calcola il tuo mutuo

Semplice e senza impegno
Anticipo

( % )
Mutuo

( % )

pochi semplici passi

inserisci i tuoi dati
Questionario completato
Grazie per aver richiesto un appuntamento senza impegno con un nostro Consulente del Credito e Assicurativo.

Hai inserito correttamente tutti i dati necessari e a breve riceverai una e-mail con un link da convalidare per inviare i tuoi dati.
Affiliato
Industriale Modena Uno Srl
Via G. Picelli, 4/B 41043 Formigine (MO)

Il nostro staff


  • Marica Beneventi
    Coordinatrice

  • Gabriele Falcone
    Collaboratore

  • Riccardo Roveda
    Collaboratore

  • Igli Aliu
    Affiliato
Via G. Picelli, 4/B 41043 Formigine (MO)
Zona: Formigine-Sassuolo-Maranello-Fiorano-Vignola-Castelnuovo Rangone-Castelvetro di Modena- Savignano
Mostra su mappa
Orari: Dal lunedì al venerdì dalle ore 8.30 alle ore 12,30 e dalle ore 13.30 alle ore 19. Sabato dalle ore 8.30 alle ore 12
Affiliato
Industriale Modena Uno Srl
Via G. Picelli, 4/B 41043 Formigine (MO)

2026 Tecnocasa Franchising S.p.A. - P. IVA 08365160152 - Via Monte Bianco 60/A 20089 Rozzano (MI). Ogni agenzia ha un proprio titolare ed è autonoma. Privacy policy | Policy utilizzo | Cookie policy