Negozio in vendita

Modena, Viale Piero Gobetti
1 locale 1 locale
40 Mq 40 Mq
1 bagno 1 bagno

Negozio in vendita

Modena, Viale Piero Gobetti

Descrizione annuncio

COSA SAPERE DELL'IMMOBILE
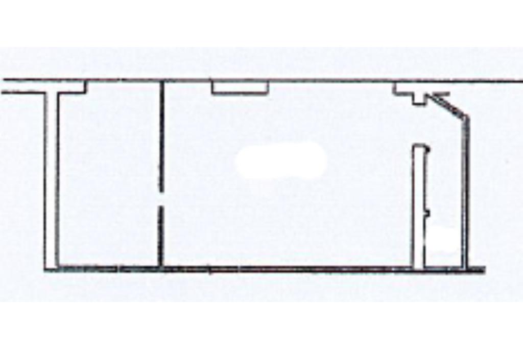
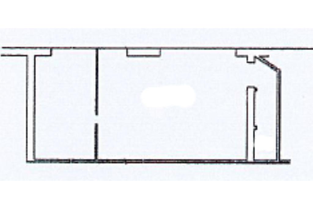
Proponiamo in vendita un negozio che dispone di una superficie utile di circa 40 metri quadrati, posto al piano terra di un edificio strutturato su quattro piani complessivi.

DESCRIZIONE E PARTICOLARITA'
La struttura proposta in vendita dispone di una superficie calpestabile di circa 40 metri quadrati, ed è situata al piano terra di una palazzina sviluppata su quattro livelli. Internamente, l'immobile si presenta come un ampio open space reso particolarmente luminoso grazie alla presenza di due vetrine con affaccio esterno. Il locale è dotato dell'impianto elettrico, di illuminazione, di riscaldamento e di condizionamento. A completare la soluzione è la presenza di un servizio igienico privato.

UBICAZIONE E CONTESTO
Il negozio sorge nella zona commerciale del Comune di Modena e dispone di alcuni posti auto messi a disposizione della clientela.

Mostra tutto

Nelle vicinanze

Trasporto pubblico Trasporto pubblico
Modena Piazza Manzoni
Modena Piazza Manzoni
290 m
stazione di Modena
stazione di Modena
2,2 Km
Morane bv Gobetti
Morane bv Gobetti
130 m
Morane bv Bellincini
Morane bv Bellincini
170 m
Modena Policlinico
Modena Policlinico
910 m
Ricariche auto elettriche Ricariche auto elettriche
Stazione Modena Manzoni | EnelX by Hera
220 m
Policlinico di Modena | EnelX by Hera
870 m
Modena Risorgimento | EnelX by Hera
1,1 Km
Duferco Ospedale di Modena
1,3 Km
Best Western Hotel Liberta'
1,4 Km
Scuole Scuole
Pre-School Mister Fogg (English and Russo)
80 m
Scuole Madonna Pellegrina
240 m
Scuola Media Statale "G. Carducci"
650 m
Scuole
700 m
Scuola Primaria Statale "G. Pascoli"
850 m
Farmacia Farmacia
Santa Caterina
600 m
San Lazzaro
1,1 Km
Beata Vergine del Popolo
1,2 Km
San Giuseppe
1,2 Km
Collegio
1,2 Km
Ospedali Ospedali
Villa Rosa
750 m
Ospedali
1,0 Km
Policlinico di Modena
1,2 Km
Ospedale Sant'Agostino
1,7 Km
Supermercati Supermercati
Esselunga
340 m
Conad
520 m
ECU
1,1 Km
U2 Supermercato
1,4 Km
Conad City
1,5 Km
Negozi Negozi
Alimentari
430 m
Europa-Est (Romania,Republica Moldova,Ucraina,Polonia,Rusia)
440 m
Planet mode
520 m
Nuovo Panificio Alberghini
530 m
Via Camogli 44
550 m
Bar Bar
Embassy
510 m
Il Cavatappi
1,0 Km
Mascagni
1,1 Km
La Baracchina
1,1 Km
Caffé del Collegio
1,2 Km
Ristoranti Ristoranti
Ristorante Cinese Primavera
360 m
Ristoranti
540 m
Francescheta58
550 m
Rosticcetia giapponese Tokyo
550 m
Pepperoncino
870 m
Mostra tutto

Caratteristiche

Rif.:
61152588
Piano:
Terra di 4
Totale piani:
4
Posti auto:
5
Condizionamento:
Autonomo
Ascensore:
No
Mostra tutto
Prezzo Prezzo
€ 90.000
Rata mutuo Rata mutuo
€ 424 / mese
Spese annue Spese annue
€ 0
Anche in affitto a
Proponi il tuo prezzoProponi il tuo prezzo

Classe Energetica

Questo immobile è esente da classe energetica
Anno di costruzione:
1965
Riscaldamento:
Autonomo
Tipo impianto:
Ad aria
Tipo alimentazione:
Altro

Ti interessa visionare l'immobile?

Fissa un appuntamento  Fissa un appuntamento

Richiedi informazioni

Clicca su Leggi per aprire l'informativa
* Questi campi sono obbligatori

Calcola il tuo mutuo

Semplice e senza impegno
Anticipo

( % )
Mutuo

( % )

pochi semplici passi

inserisci i tuoi dati
Questionario completato
Grazie per aver richiesto un appuntamento senza impegno con un nostro Consulente del Credito e Assicurativo.

Hai inserito correttamente tutti i dati necessari e a breve riceverai una e-mail con un link da convalidare per inviare i tuoi dati.
Affiliato
Industriale Modena Uno Srl
Via G. Picelli, 4/B 41043 Formigine (MO)

Il nostro staff


  • Marica Beneventi
    Coordinatrice

  • Gabriele Falcone
    Collaboratore

  • Igli Aliu
    Affiliato
Via G. Picelli, 4/B 41043 Formigine (MO)
Zona: Formigine-Sassuolo-Maranello-Fiorano-Vignola-Castelnuovo Rangone-Castelvetro di Modena- Savignano
Mostra su mappa
Orari: Dal lunedì al venerdì dalle ore 8.30 alle ore 12,30 e dalle ore 13.30 alle ore 19. Sabato dalle ore 8.30 alle ore 12
Affiliato
Industriale Modena Uno Srl
Via G. Picelli, 4/B 41043 Formigine (MO)

2026 Tecnocasa Franchising S.p.A. - P. IVA 08365160152 - Via Monte Bianco 60/A 20089 Rozzano (MI). Ogni agenzia ha un proprio titolare ed è autonoma. Privacy policy | Policy utilizzo | Cookie policy