Negozio in affitto

Sassuolo, Viale Refice
€ 3.000 / mese
1 locale 1 locale
185 Mq 185 Mq
2 bagni 2 bagni

Negozio in affitto

Sassuolo, Viale Refice

Descrizione annuncio

COSA SAPERE DELL’IMMOBILE

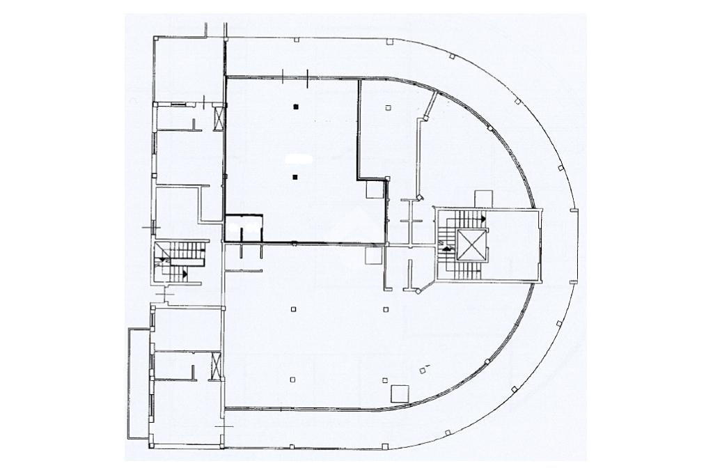
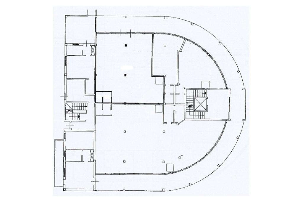
Proponiamo in locazione un negozio di circa 185 metri quadrati situato al piano terra in un edificio che si sviluppa su tre livelli.

DESCRIZIONE E PARTICOLARITA’

La soluzione proposta in locazione dispone di una superficie complessiva di circa 185 metri quadrati disposti al piano terra. Lo spazio interno si presenta con un ampio open space reso particolarmente luminoso grazie alla presenza di cinque vetrine con affaccio su strada. L’immobile è provvisto degli impianti elettrico, di illuminazione, di riscaldamento e di condizionamento; sono inoltre presenti due servizi igienici privati.
Completa la soluzione la presenza di una cantina di circa 130 metri quadrati posta al piano interrato.

UBICAZIONE E CONTESTO

Il locale si trova in zona commerciale e di forte passaggio del Comune di Sassuolo e beneficia inoltre di circa una ventina di posti auto messi a disposizione della clientela.

Mostra tutto

Nelle vicinanze

Trasporto pubblico Trasporto pubblico
Sassuolo Terminal
Sassuolo Terminal
1,6 Km
Sassuolo Radici
Sassuolo Radici
1,6 Km
Refice Scuole (Capolinea)
Refice Scuole (Capolinea)
60 m
Tasso
Tasso
80 m
Veggia
Veggia
2,4 Km
Ricariche auto elettriche Ricariche auto elettriche
Sassuolo Piscina | EnelX
670 m
SASSUOLO Alessandrini | ENELX
780 m
Sassuolo Palazzo Ducale | ENELX
1,2 Km
SASSUOLO Parcheggio piazza Risorgimento | ENELX
1,2 Km
Stazione di Sassuolo Terminal | EnelX
1,6 Km
Scuole Scuole
Scuole
100 m
Scuola Media
370 m
Scuola superiore
590 m
I.T.I.S. Alessandro Volta
870 m
Scuola Secondaria di Primo Grado "Parco Ducale"
960 m
Farmacia Farmacia
Farmacia
1,1 Km
Farmacia comunale S.Giorgio
1,2 Km
Farmacia Althea
2,3 Km
Farmacia Comunale
3,0 Km
Ospedali Ospedali
Nuovo Ospedale Civile
1,1 Km
Casa di cura Villa Fiorita
1,3 Km
Supermercati Supermercati
Conad
1,3 Km
Sigma
1,5 Km
Euro Spin
1,6 Km
COOP
1,8 Km
Coop Mezzavia
1,8 Km
Negozi Negozi
Negozi
1,1 Km
COOP
1,5 Km
Prima Market
1,6 Km
La Boulangerie
1,7 Km
Alimentari Bellini
2,7 Km
Bar Bar
Bar
960 m
Bar Regina
1,1 Km
Bar Guarascio
3,0 Km
Ristoranti Ristoranti
Ristoranti
1,2 Km
Leon-d'Oro
1,2 Km
La Paggeria
1,3 Km
Ristorante Hotel Due Madonne
1,9 Km
Osteria dei Girasoli
2,5 Km
Mostra tutto

Caratteristiche

Rif.:
61130820
Piano:
Terra di 3
Totale piani:
3
Posti auto:
20
Condizionamento:
Autonomo
Ascensore:
No
Mostra tutto
Prezzo Prezzo
€ 3.000 / mese
Spese annue Spese annue
€ 0

Classe Energetica

Questo immobile è esente da classe energetica
Anno di costruzione:
1995
Riscaldamento:
Autonomo
Tipo impianto:
Ad aria
Tipo alimentazione:
Altro

Ti interessa visionare l'immobile?

Fissa un appuntamento  Fissa un appuntamento

Richiedi informazioni

Clicca su Leggi per aprire l'informativa
* Questi campi sono obbligatori
Affiliato
Industriale Modena Uno Srl
Via G. Picelli, 4/B 41043 Formigine (MO)

Il nostro staff


  • Marica Beneventi
    Coordinatrice

  • Gabriele Falcone
    Collaboratore

  • Riccardo Roveda
    Collaboratore

  • Igli Aliu
    Affiliato
Via G. Picelli, 4/B 41043 Formigine (MO)
Zona: Formigine-Sassuolo-Maranello-Fiorano-Vignola-Castelnuovo Rangone-Castelvetro di Modena- Savignano
Mostra su mappa
Orari: Dal lunedì al venerdì dalle ore 8.30 alle ore 12,30 e dalle ore 13.30 alle ore 19. Sabato dalle ore 8.30 alle ore 12
Affiliato
Industriale Modena Uno Srl
Via G. Picelli, 4/B 41043 Formigine (MO)

2026 Tecnocasa Franchising S.p.A. - P. IVA 08365160152 - Via Monte Bianco 60/A 20089 Rozzano (MI). Ogni agenzia ha un proprio titolare ed è autonoma. Privacy policy | Policy utilizzo | Cookie policy