Ufficio in vendita

Sassuolo, Via Regina Pacis
€ 270.000
8 locali 8 locali
340 Mq 340 Mq
2 bagni 2 bagni

Ufficio in vendita

Sassuolo, Via Regina Pacis

Descrizione annuncio

COSA SAPERE DELL'IMMOBILE
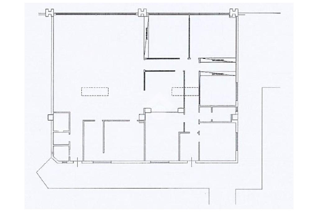
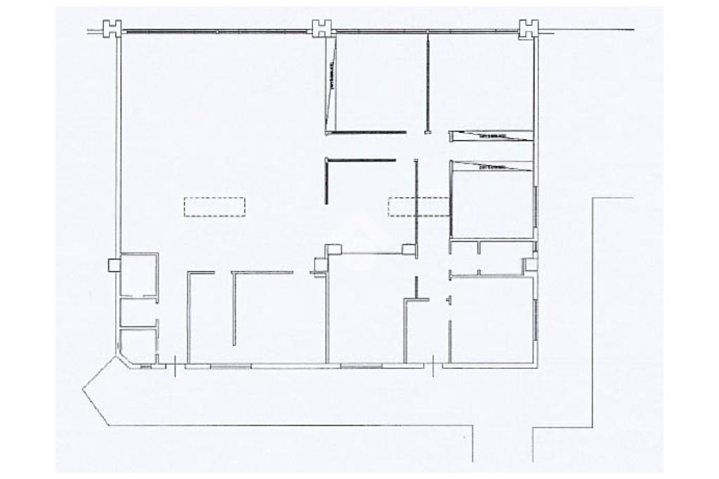
Proponiamo in vendita un ufficio di circa 340 metri quadrati, situato al primo piano di un edificio sviluppato su tre livelli complessivi.

DESCRIZIONE E PARTICOLARITA'

La struttura proposta in vendita è situata al primo piano di un edificio sviluppato su tre piani e dispone di una superficie calpestabile di circa 340 metri quadrati. Internamente, l'immobile è suddiviso in otto locali resi particolarmente luminosi grazie alla presenza di tre vetrine con affaccio esterno. Il locale è dotato dell'impianto elettrico, di illuminazione, di riscaldamento, di condizionamento e l’impianto di allarme. A completare la soluzione è la presenza di due servizi igienici privati e dell'ascensore.

L'immobile sarà disponibile a tre mesi dall'accettazione della proposta.

UBICAZIONE E CONTESTO
L’ufficio si trova nel Comune di Sassuolo e dispone di una quarantina di posti auto messi a disposizione della clientela e di due posti auto ad uso esclusivo.

Mostra tutto

Nelle vicinanze

Trasporto pubblico Trasporto pubblico
Sassuolo Radici
Sassuolo Radici
1,3 Km
Sassuolo Terminal
Sassuolo Terminal
1,4 Km
Vittime 11 Settembre
Vittime 11 Settembre
490 m
Vittime 11 Settembre / Tobagi
Vittime 11 Settembre / Tobagi
510 m
Sassuolo Quattroponti
Sassuolo Quattroponti
970 m
Ricariche auto elettriche Ricariche auto elettriche
Sassuolo Ca' Marta | EnelX
620 m
Lidl Sassuolo
890 m
Stazione di Sassuolo Terminal | EnelX
1,4 Km
Sassuolo Palazzo Ducale | ENELX
1,7 Km
SASSUOLO Parcheggio piazza Risorgimento | ENELX
1,8 Km
Scuole Scuole
Scuola Primaria "Vittorino da Feltre"
880 m
Scuola Primaria "Gino Bellini"
910 m
ITCG Alberto Baggi
1,4 Km
Scuola Primaria "Carlo Collodi"
1,4 Km
Istituto San Giuseppe
1,7 Km
Farmacia Farmacia
Farmacia
1,7 Km
Farmacia comunale S.Giorgio
1,8 Km
Farmacia Althea
1,9 Km
Farmacia Comunale
2,5 Km
Ospedali Ospedali
Casa di cura Villa Fiorita
2,2 Km
Nuovo Ospedale Civile
2,9 Km
Supermercati Supermercati
COOP
140 m
Supermercato IN's
390 m
Panorama
990 m
Esselunga
1,0 Km
Sigma
1,6 Km
Negozi Negozi
La Boulangerie
1,2 Km
Prima Market
1,4 Km
COOP
1,5 Km
Negozi
1,6 Km
Al Furner
2,6 Km
Bar Bar
Bar
1,5 Km
La Pesa
1,7 Km
Bar Regina
1,9 Km
Bar Guarascio
2,5 Km
Ristoranti Ristoranti
Autoporto
930 m
Ristorante Hotel Due Madonne
1,1 Km
Osteria dei Girasoli
1,1 Km
La Paggeria
1,7 Km
La Pesa
1,7 Km
Mostra tutto

Caratteristiche

Rif.:
61169821
Piano:
1 di 3 con ascensore (Piano basso)
Box:
2
Posti auto:
40
Condizionamento:
Autonomo
Ascensore:
Mostra tutto
Prezzo Prezzo
€ 270.000
Rata mutuo Rata mutuo
€ 1.282 / mese
Spese annue Spese annue
€ 3.500
Proponi il tuo prezzoProponi il tuo prezzo

Classe Energetica

Questo immobile è esente da classe energetica
Anno di costruzione:
1992
Riscaldamento:
Autonomo
Tipo impianto:
A radiatori
Tipo alimentazione:
Altro

Ti interessa visionare l'immobile?

Fissa un appuntamento  Fissa un appuntamento

Richiedi informazioni

Clicca su Leggi per aprire l'informativa
* Questi campi sono obbligatori

Calcola il tuo mutuo

Semplice e senza impegno
Anticipo

( % )
Mutuo

( % )

pochi semplici passi

inserisci i tuoi dati
Questionario completato
Grazie per aver richiesto un appuntamento senza impegno con un nostro Consulente del Credito e Assicurativo.

Hai inserito correttamente tutti i dati necessari e a breve riceverai una e-mail con un link da convalidare per inviare i tuoi dati.
Affiliato
Industriale Modena Uno Srl
Via G. Picelli, 4/B 41043 Formigine (MO)

Il nostro staff


  • Marica Beneventi
    Coordinatrice

  • Gabriele Falcone
    Collaboratore

  • Riccardo Roveda
    Collaboratore

  • Igli Aliu
    Affiliato
Via G. Picelli, 4/B 41043 Formigine (MO)
Zona: Formigine-Sassuolo-Maranello-Fiorano-Vignola-Castelnuovo Rangone-Castelvetro di Modena- Savignano
Mostra su mappa
Orari: Dal lunedì al venerdì dalle ore 8.30 alle ore 12,30 e dalle ore 13.30 alle ore 19. Sabato dalle ore 8.30 alle ore 12
Affiliato
Industriale Modena Uno Srl
Via G. Picelli, 4/B 41043 Formigine (MO)

2026 Tecnocasa Franchising S.p.A. - P. IVA 08365160152 - Via Monte Bianco 60/A 20089 Rozzano (MI). Ogni agenzia ha un proprio titolare ed è autonoma. Privacy policy | Policy utilizzo | Cookie policy