Capannone in affitto

Vignola, Via dell'Artigianato
€ 3.500 / mese
1 locale 1 locale
700 Mq 700 Mq
2 bagni 2 bagni

Capannone in affitto

Vignola, Via dell'Artigianato

Descrizione annuncio

COSA SAPERE DELL'IMMOBILE
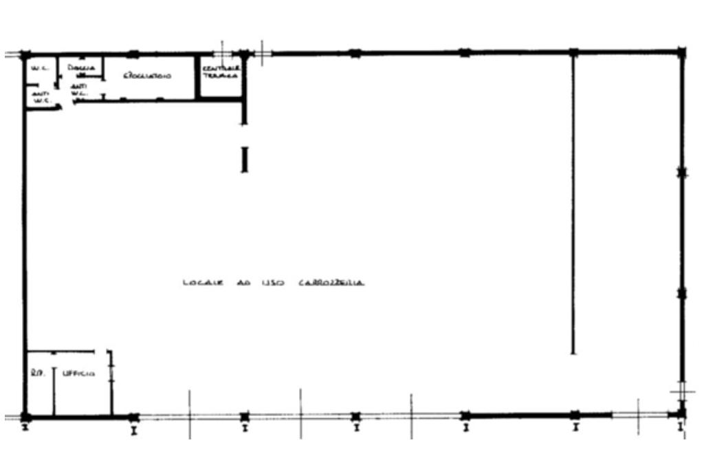
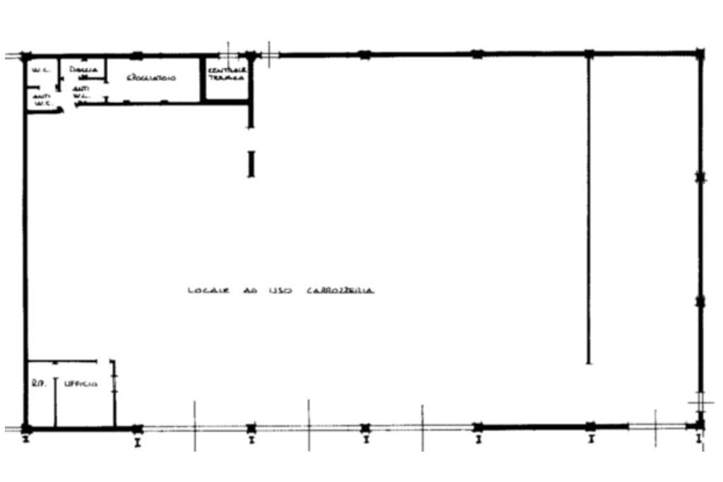
Proponiamo in locazione un capannone con una superficie utile di circa 700 metri quadrati posizionato al piano terra di un edificio strutturato su un unico livello. Inoltre è presente un'area esterna esclusiva di circa 700 metri quadrati.


DESCRIZIONE E PARTICOLARITA'

Il capannone proposto in locazione ha una superficie complessiva di circa 700 metri quadrati posizionati al piano terra, di cui circa 50 metri quadrati adibiti ad uffici situati al primo piano. L'accesso all'area interna avviene tramite tre portoni di 4,00 metri di altezza. Internamente, l'immobile presenta un’unica campata e due locali con un'altezza massima sfruttabile di circa 7,00 metri e un'altezza sottotrave di circa 6,00 metri. Il locale è dotato dell’impianto elettrico e di illuminazione. A completare la soluzione è la presenza di due servizi igienici privati provvisti di docce e spogliatoi. Per l’entrata e l’uscita dei mezzi, inoltre, è presente un accesso carraio.

L'immobile sarà disponibile a partire dall'01/05/2026.


UBICAZIONE E CONTESTO

La struttura è situata nella zona industriale del Comune di Vignola e dispone di alcuni posti auto messi a disposizione della clientela.

Mostra tutto

Nelle vicinanze

Trasporto pubblico Trasporto pubblico
Vignola
Vignola
1,6 Km
Savignano Comune
Savignano Comune
2,7 Km
Vignola Terminal
Vignola Terminal
1,2 Km
Vignola
Vignola
1,6 Km
Ricariche auto elettriche Ricariche auto elettriche
Hera Parco delle Città Gemellate e Amiche Brodano
1,2 Km
Duferco Ospedale di Vignola
1,4 Km
Savignano sul Panaro Rubicone | EnelX
2,9 Km
Scuole Scuole
Scuole
930 m
Scuola Superiore Primo Levi
1,3 Km
Scuola Superiore I.T.C. Agostino Paradisi
1,3 Km
Scuola Media L.A.Muratori
1,4 Km
Scuola Primaria G. Mazzini
1,6 Km
Farmacia Farmacia
farmacia comunale
880 m
Vignolese
970 m
Farmacia Comunale Giovanna Carbonara
1,3 Km
Farmacia
3,0 Km
Ospedali Ospedali
Ospedali
1,5 Km
Supermercati Supermercati
Pam
700 m
conad marcopolo
850 m
Coop "I Ciliegi"
1,1 Km
Supermercati
1,1 Km
Negozi Negozi
Tigota
870 m
Conad
1,2 Km
Selmi
1,8 Km
Bar Bar
Bar Luna
720 m
3001
1,5 Km
Viola
1,8 Km
BAR Ergastolo
2,7 Km
Ristoranti Ristoranti
la campagnola
560 m
PizziKotto
700 m
Sushiko
850 m
Pizzeria La Smorfia
1,8 Km
Deniz Kebab
1,9 Km
Mostra tutto

Caratteristiche

Rif.:
61179047
Piano:
Terra di 2
Totale piani:
2
Posti auto:
5
Condizionamento:
Assente
Ascensore:
No
Mostra tutto
Prezzo Prezzo
€ 3.500 / mese
Spese annue Spese annue
€ 0

Classe Energetica

Questo immobile è esente da classe energetica
Anno di costruzione:
1989
Riscaldamento:
Assente

Ti interessa visionare l'immobile?

Fissa un appuntamento  Fissa un appuntamento

Richiedi informazioni

Clicca su Leggi per aprire l'informativa
* Questi campi sono obbligatori
Affiliato
Industriale Modena Uno Srl
Via G. Picelli, 4/B 41043 Formigine (MO)

Il nostro staff


  • Marica Beneventi
    Coordinatrice

  • Gabriele Falcone
    Collaboratore

  • Igli Aliu
    Affiliato
Via G. Picelli, 4/B 41043 Formigine (MO)
Zona: Formigine-Sassuolo-Maranello-Fiorano-Vignola-Castelnuovo Rangone-Castelvetro di Modena- Savignano
Mostra su mappa
Orari: Dal lunedì al venerdì dalle ore 8.30 alle ore 12,30 e dalle ore 13.30 alle ore 19. Sabato dalle ore 8.30 alle ore 12
Affiliato
Industriale Modena Uno Srl
Via G. Picelli, 4/B 41043 Formigine (MO)

2026 Tecnocasa Franchising S.p.A. - P. IVA 08365160152 - Via Monte Bianco 60/A 20089 Rozzano (MI). Ogni agenzia ha un proprio titolare ed è autonoma. Privacy policy | Policy utilizzo | Cookie policy