Ufficio in affitto

Vignola, Via Minghelli
€ 1.650 / mese
1 locale 1 locale
100 Mq 100 Mq
1 bagno 1 bagno

Ufficio in affitto

Vignola, Via Minghelli

Descrizione annuncio

COSA SAPERE DELL'IMMOBILE
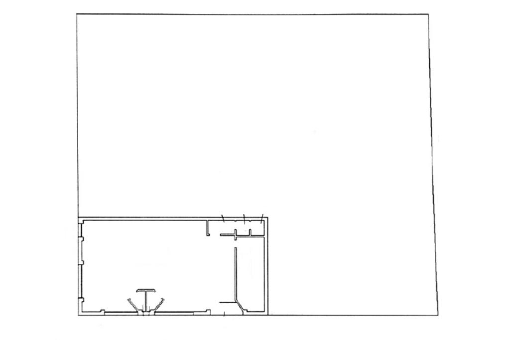
Proponiamo in locazione un ufficio che dispone di una superficie utile di circa 100 metri quadrati, situato al piano terra di un edificio strutturato su un piano.


DESCRIZIONE E PARTICOLARITA'
La soluzione si sviluppa su di una superficie commerciale di circa 100 metri quadrati disposti su un unico livello al piano terra di un edificio strutturato su un piano. Internamente la soluzione si presenta come un ampio open space reso molto luminoso grazie alla presenza di cinque vetrine con affaccio su strada. L'immobile è completo degli impianti elettrico, di illuminazione, di condizionamento e di riscaldamento. A completare la soluzione la presenza di un servizio igienico privato.


UBICAZIONE E CONTESTO
L'immobile si trova nell'area commerciale del comune di Vignola e dispone di una decina di posti auto messi a disposizione della clientela.

Mostra tutto

Nelle vicinanze

Trasporto pubblico Trasporto pubblico
Vignola
Vignola
320 m
Savignano Comune
Savignano Comune
1,9 Km
Vignola
Vignola
90 m
Vignola Battisti
Vignola Battisti
160 m
Ricariche auto elettriche Ricariche auto elettriche
Duferco Ospedale di Vignola
500 m
Savignano sul Panaro Rubicone | EnelX
1,1 Km
Hera Parco delle Città Gemellate e Amiche Brodano
1,7 Km
Savignano sul Panaro Artigianato | EnelX
2,3 Km
EnelX fast Savignano sul Panaro
2,4 Km
Scuole Scuole
Scuola Elementare Jacopo Barozzi
330 m
Scuole
400 m
Scuola Primaria G. Mazzini
430 m
Scuola Media L.A.Muratori
740 m
Scuola Superiore I.T.C. Agostino Paradisi
950 m
Farmacia Farmacia
Vignolese
1,3 Km
farmacia comunale
1,5 Km
Farmacia Comunale Giovanna Carbonara
1,9 Km
Farmacia
2,0 Km
Ospedali Ospedali
Ospedali
450 m
Supermercati Supermercati
Supermercati
1,1 Km
Coop "I Ciliegi"
1,1 Km
Pam
1,2 Km
conad marcopolo
1,5 Km
Negozi Negozi
Selmi
90 m
Conad
1,1 Km
Tigota
1,5 Km
Bar Bar
Viola
190 m
3001
1,1 Km
Bar Luna
2,0 Km
Ristoranti Ristoranti
Deniz Kebab
140 m
Osteria della Luna
250 m
Pizzeria La Smorfia
580 m
La Formica
930 m
PizziKotto
1,3 Km
Mostra tutto

Caratteristiche

Rif.:
61131313
Piano:
Terra di 1
Totale piani:
1
Posti auto:
10
Condizionamento:
Autonomo
Ascensore:
No
Mostra tutto
Prezzo Prezzo
€ 1.650 / mese
Spese annue Spese annue
€ 0

Classe Energetica

Questo immobile è esente da classe energetica
Anno di costruzione:
2000
Riscaldamento:
Autonomo
Tipo impianto:
Ad aria
Tipo alimentazione:
Altro

Ti interessa visionare l'immobile?

Fissa un appuntamento  Fissa un appuntamento

Richiedi informazioni

Clicca su Leggi per aprire l'informativa
* Questi campi sono obbligatori
Affiliato
Industriale Modena Uno Srl
Via G. Picelli, 4/B 41043 Formigine (MO)

Il nostro staff


  • Marica Beneventi
    Coordinatrice

  • Gabriele Falcone
    Collaboratore

  • Igli Aliu
    Affiliato
Via G. Picelli, 4/B 41043 Formigine (MO)
Zona: Formigine-Sassuolo-Maranello-Fiorano-Vignola-Castelnuovo Rangone-Castelvetro di Modena- Savignano
Mostra su mappa
Orari: Dal lunedì al venerdì dalle ore 8.30 alle ore 12,30 e dalle ore 13.30 alle ore 19. Sabato dalle ore 8.30 alle ore 12
Affiliato
Industriale Modena Uno Srl
Via G. Picelli, 4/B 41043 Formigine (MO)

2026 Tecnocasa Franchising S.p.A. - P. IVA 08365160152 - Via Monte Bianco 60/A 20089 Rozzano (MI). Ogni agenzia ha un proprio titolare ed è autonoma. Privacy policy | Policy utilizzo | Cookie policy